For the first time in three generations, a rare expanse of land in the Hamptons, totaling more than 40 acres, is being offered for sale. Beth E. Marano of The Corcoran Group just listed this sizable Water Mill assemblage for $25.5 million.
“What makes these parcels truly exceptional isn’t just their size or location, it’s about the feeling you get when you’re here,” Marano says. “The open skies, uninterrupted views, and coveted privacy create an idyllic setting that’s unparalleled in our region. It’s more than land; it’s the opportunity to create your own legacy.”
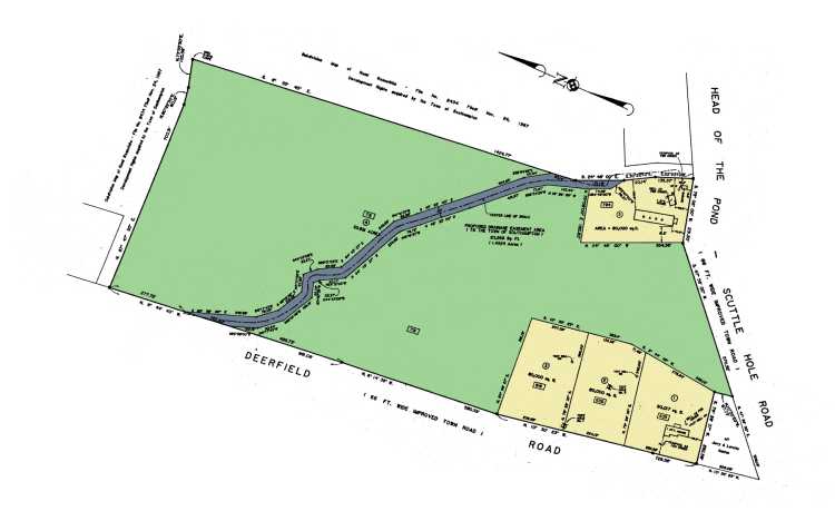
Located at 794 Head of Pond Road and 635, 639. 641 and 731 Deerfield Road, the Southampton Town property adds up to 41.05 acres with a 33-acre protected agricultural reserve. There are four shy-two-acre estate lots, each with R-80 zoning, situated directly adjacent to the preserved farmland.

Each of the developable parcels “offers the scale and flexibility to create a world-class Hamptons compound, which could include a grand main residence, pool and pool house, generous patios, decking and tennis — again all framed by the farmland and wide open sky,” the Corcoran description reads.
Not looking for something quite as large? Each parcel, including the agricultural reserve, may be purchased individually as well.
The Sikorski family has owned the property since in the 1950s, a few decades after patriarch Chester Sikorski arrived in the United States from Poland and settled in Water Mill on Deerfield Road, according to Marano.

At one time, he owned and farmed more than 400 acres from Deerfield Road to Seven Ponds Road, and even into Southampton Village. His farm produced mostly potatoes, but also wheat, rye and other row crops. On a rare occasion, corn was planted, and, recently, it produced a crop of pumpkins, cultivated by a fellow local farmer.
“Sikorski was said to get a laugh from people who asked about the ‘lovely white flowers’ in the spring — not knowing they were rows of potatoes,” we’re told.
The patriarch died in 1972, and his family, including his wife, Alice Sikorski, preserved the bulk of his original 41-acre farmland at 731 Deerfield Road, but four 1.86-acre parcels remain developable. Alice Sikorski died in 1993.
There are several existing buildings on the property.such as an 800-square-foot house and a potato cellar on Head of Pond Road and a 1,876-square-foot home at 635 Deerfield Road. The two other parcels, 639 and 641 Deerfield Road, are vacant.
Not included in the sale is the family’s nearly one-acre home lot at the corner of Deerfield and Head of Pond Roads.
Email tvecsey@danspapers.com with comments, questions, or tips. Follow Behind The Hedges on Facebook, X and Instagram.






















